OFICINA 440 m² en C/Llorens i Barba (casi Rda. Guinardó)

Descripción


IDEAL PARA SERVICIOS! Coworking, clínica dental, centro de estética y belleza, danza, gimnasio, escuela de idiomas, call center, oficina, etc

Muy luminoso con 68 m de fachada acristalada, orientación sur

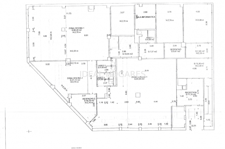
Actualmente el local tiene divisiones realizadas mediante tabiques, que se pueden eliminar (Están construidos sobre el suelo) para dejarlo diáfano o modificar

Las divisiones actuales enmarcan diferentes espacios de trabajo, entre los que destacan:

Oficina 86 m²

Oficina 28 m²

Oficina 94 m²

Además, varios despachos, salas de formación, de trabajo, servicios, equipos informáticos, 4 aseos + 1 baño completo, sala de recepción, salas de reuniones, etc

Altura de techo de 2,7m.

Suelo de gres

TODA la planta pertenece al local

Se sitúa próximo al Hospital de Sant Pau y a escasos metros de Ronda Guinardó, zona de mucho tránsito peatonal y de vehículos.

Ubicación: sobre Parque JARDINES del Baix Guinardo, próxima a Zona Gracia- Ensanche derecho.

Parking Público, bajo el Parque JARDINES, junto a la oficina

Hotel 4* junto a la oficina, (Hotel ILUNION Bel Art)

Bien comunicado por transporte público: Metro L4-AIFons X, autobús V21 y Bicing.

Fácil acceso por la ronda del Guinardó y el túnel de la Rovira. (a 200 m)

Suministros de luz y agua dados de alta.

Características

Tipo de inmueble: Local comercial
Superficie (m²): 440 m²
Baños: 5

Zonas de interés

Cerca de transporte público
Certificado energético
Consumo :
D
159 kW h m² / año
Emisiones :
D
32 kg CO₂ m² / año

19 de julio de 2023

  • 440 m²
  • 5 Baños
690.000,00 €
http://hogar.qbabit.com/propiedades/local-comercial/oficina-440-m2-en-c-llorens-i-barba-casi-rda-guinardo

Propiedades similares


IDEAL HOGARES 671212303 IDEAL HOGARES 671212303
Barcelona
Hace 2 meses

70

Baños

1

Imágenes

1
295.000,00 € Ver
IDEAL HOGARES 671212303 IDEAL HOGARES 671212303
Barcelona
Hace 3 meses

117

Baños

1

Imágenes

5
160.000,00 € Ver
IDEAL HOGARES 671212303 IDEAL HOGARES 671212303
Barcelona
Hace 6 meses

120

Baños

2

Imágenes

15
500.000,00 € Ver